Projekte auf dem Land
Unsere Projekte im ländlichen Raum
Gemeinde Groß Pankow (Prignitz) – Brandenburg
Bebauungsplan Groß Pankow Nr. 2 „Sport und Freizeit“
Die Fläche des ca. 3,9 ha großen Geltungsbereiches wird momentan als Sport- und Freizeitanlage, mit vorhandenem Sportplatz, Sportlerheim und einem Spielplatz sowie einer Skateanlage, genutzt.
Ziel der Planung ist es, diese Nutzungen zu erweitert und zu sichern. Durch die Aufstellung des Bebauungsplanes eröffnet sich die Möglichkeit, einen Neubau des Sportlerheimes zu realisieren und die Fläche in Zukunft um weitere bauliche Maßnahmen, wie z.B. eine Tribüne, zu ergänzen und nach Fertigstellung des neuen Sportlerheimes das alte Gebäude als neues Dorfgemeinschaftshaus zu nutzen.
Es handelt sich um ein zweistufiges Verfahren mit paralleler Erstellung des Umweltberichtes.
Gemeinde Vellahn – Mecklenburg-Vorpommern
Vorhabenbezogener Bebauungsplan Nr. 6 „Tierschutzzentrum Banzin“
Die Fläche des ca. 3,0 ha großen Geltungsbereiches im Ortsteil Banzin der Gemeinde Vellahn wird derzeit als Tierschutzzentrum „Land der Tiere“ genutzt.
Das Zentrum wird durch die Stiftung Tiernothilfe betrieben und dient als Heim für gerettete Tiere, die hier bis zu ihrem Lebensende versorgt werden. Aktuell umfasst das Areal mehrere bauliche Anlagen, darunter ein Mitarbeiter/innen-Wohnhaus und ein Gebäude zur Kleintierhaltung. Ziel der Planung ist es, die baulichen und betrieblichen Erweiterungen des Tierschutzzentrums langfristig zu sichern. Durch die Aufstellung des vorhabenbezogenen Bebauungsplanes eröffnet sich die Möglichkeit, Neubauten wie ein Bürogebäude sowie ein Kleintier- und Exotenhaus zu realisieren.
Es handelt sich um ein zweistufiges Verfahren mit paralleler Erstellung des Umweltberichtes.
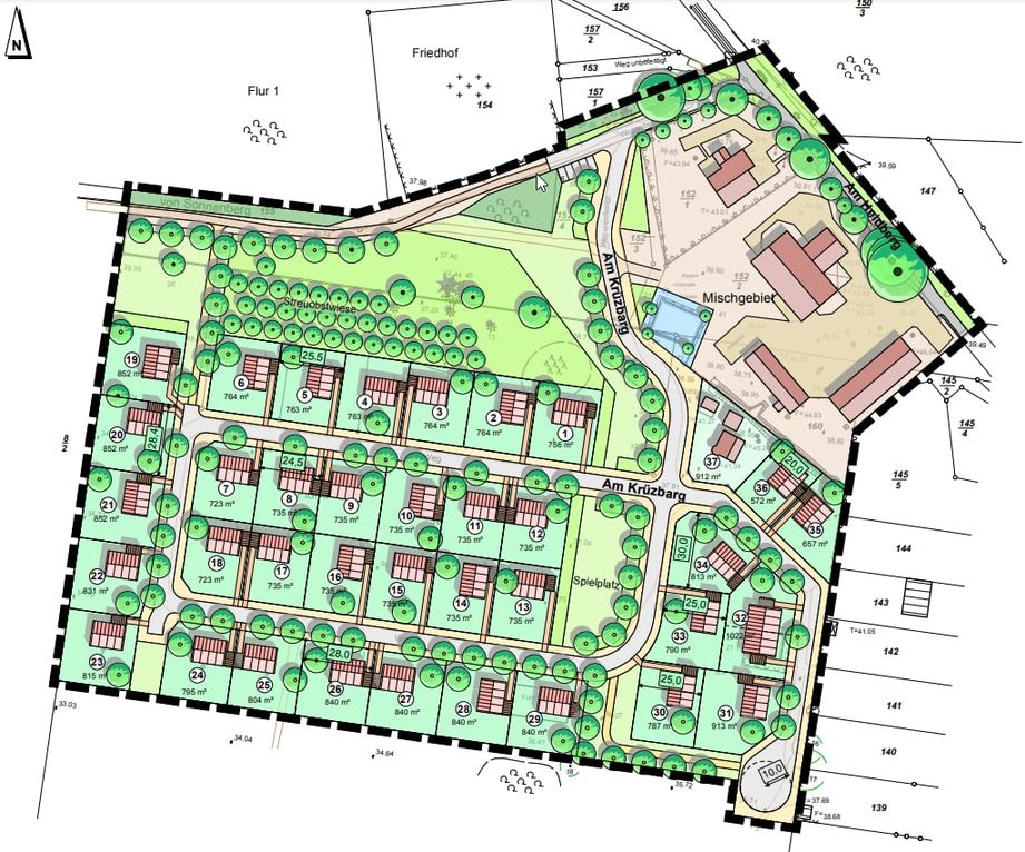
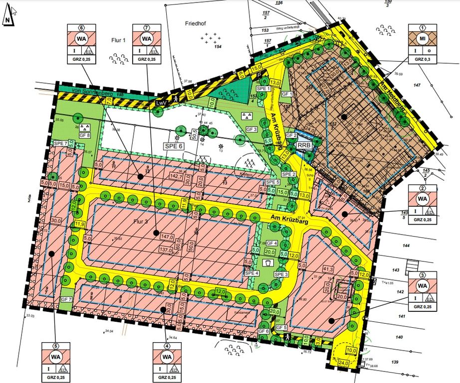
Gemeinde Dersenow – Mecklenburg-Vorpommern
1. Änderung Bebauungsplan Nr. 1 „Am Krüzbarg“
Im Bereich des 1997 in Rechtskraft getretenen Bebauungsplanes Dersenow Nr. 1 soll im Zuge der 1. Änderung in Abstimmung mit der Gemeinde das Wohnbauprojekt „Am Krüzbarg“ realisiert werden.
Das Plangebiet hat eine Fläche von insgesamt rund 7,0 ha und besteht aus ehemalig landwirtschaftlich Flächen mit unbefestigten Wegen. Im Nordosten befinden sich das Dorfgemeinschaftshaus sowie ein Feuerwehrhaus. Mit der 1. Änderung des Bebauungsplanes wird das Planungsziel verfolgt, die Erschließung anzupassen und Wohnraum zu schaffen. Die Änderung des Bebauungsplanes dient somit der Deckung des steigenden Bedarfs an Wohnraum in der Region.
Der Bebauungsplan wird im vereinfachten Verfahren nach § 13 BauGB durchgeführt.
Gemeinde Karstädt (Prignitz) – Brandenburg
Bebauungsplan Premslin „Repowering Windpark Premslin“
Der ca. 169,2 ha große Geltungsbereich des Bebauungsplanes Premslin „Repowering Windpark Premslin“ befindet sich südöstlich des Ortsteils Karstädt auf Höhe der Ortsteile Glövzin, Premslin und dem Ortsteil Schönfeld der Stadt Perleberg.
Das Repowering Vorhaben umfasst den Rückbau von 14 alten Windenergieanlagen, die durch 7 neue zwischen 200 m und 250 m hohe Windenergieanlagen ersetzt werden sollen. Hierzu werden gemäß § 11 Abs. 1 Baunutzungsverordnung (BauNVO) 7 neue sonstige Sondergebiete mit der Zweckbestimmung „Windenergienutzung“ festgesetzt. Darüber hinaus wird ein sonstiges Sondergebiet für eine weiterhin noch bestehende Altanlage festgesetzt.
Der Bebauungsplan wird als zweistufiges Verfahren mit Umweltbericht durchgeführt.
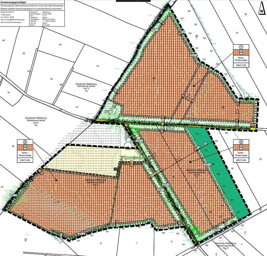
Gemeinde Plattenburg – Brandenburg
Bebauungsplan „Solarpark Ponitz“
Der Bebauungsplan „Solarpark Ponitz“ ist einer von insgesamt 14 Bebauungsplänen für die Realisierung von PV-Freiflächenanlagen innerhalb der Gemeinde Plattenburg.
Das Plangebiet umfasst 46,4 ha und befindet sich überwiegend in landwirtschaftlicher Nutzung, ergänzt durch eine kleine Waldfläche im Südosten. Zukünftig sollen auf der Fläche PV-Freiflächenanlagen realisiert werden. Planungsziel des Vorhabens ist die Förderung erneuerbarer Energien in der Gemeinde Plattenburg. Angesichts der politischen und energetischen Herausforderungen strebt die Gemeinde danach, ihre Energieversorgung lokal und nachhaltig zu sichern.
Der Bebauungsplan wird im zweistufigen Verfahren aufgestellt. Die Erstellung des Umweltberichtes erfolgt durch ein externes Umweltplanungsbüro.
Projekte in der Stadt
Eine Auswahl an aktuellen Projekten im städtischen Umfeld
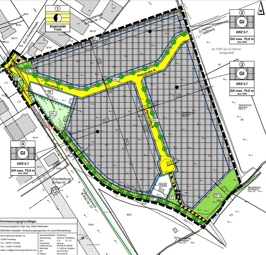
Stadt Perleberg – Brandenburg
Bebauungsplan Nr. 43 „Gewerbegebiet Quitzow, südliche Erweiterung“
Der Geltungsbereich des Bebauungsplanes Nr. 43 umfasst eine Größe von rund 11,4 ha und stellt die südliche Erweiterung des Gewerbe- und Industriegebietes im Bereich Quitzow östlich der B 5, nördlich der B 189-Umgehung und südlich der Landesstraße 10 dar.
Ziel der Erweiterung des Gewerbegebietes ist es, in der Stadt Perleberg weitere Industrie- und Gewerbebetriebe anzusiedeln, um wirtschaftliche Impulse für die Stadt und die Region zu fördern.
Der Bebauungsplan wird als zweistufiges Verfahren mit Umweltbericht durchgeführt.
Stadt Pritzwalk – Brandenburg
Bebauungsplan Nr. 27 „Rodanesiedlung - Wohnen und Gewerbe westlich Havelberger Straße“
Aufgrund der steigenden Nachfrage nach Baugrundstücken für Einzel- und Doppelhäuser in den letzten zehn Jahren hat die Stadt Pritzwalk im Jahr 2019 beschlossen, verschiedene Schwerpunkträume innerhalb der Kernstadt auf ihre Eignung für zukünftige Siedlungsentwicklungen hin zu untersuchen.
Hierbei wurde auch der Standort westlich der Havelberger Straße betrachtet, welcher das 24,4 ha große Plangebiet des Bebauungsplanes Nr. 27 darstellt. Planungsziel ist die Entwicklung von ca. 50 Wohnbaugrundstücken sowie eines kleinen Gewerbegebietes.
Die Aufstellung des Bebauungsplanes erfolgt als zweistufiges Regelverfahren mit paralleler Umweltprüfung nebst Erstellung des Umweltberichtes.
Gemeinde Heikendorf – Schleswig-Holstein
Vorhabenbezogener Bebauungsplan Nr. 91 „Einkaufszentrum Am Schmiedeplatz“
Das ca. 0,67 ha große Plangebiet des vorhabenbezogenen Bebauungsplanes Nr. 91 befindet sich im Zentrum der Ortslage der Gemeinde Heikendorf und stellt einen zentralen Treffpunkt für die Bewohner und Besucher der Gemeinde dar.
Ziel der Planung ist es, die baulichen Voraussetzungen für die Vergrößerung und Modernisierung des auf der Fläche befindlichen Einkaufszentrums zu schaffen. Dies umfasst die Erweiterung der Verkaufsfläche. Zudem werden vier sanierungsbedürftige Gebäude im Südwesten des Plangebietes abgerissen, um die erforderliche Anzahl zusätzlicher Parkplätze zu schaffen. Durch die Erweiterung und Modernisierung des Einkaufszentrums soll die Nahversorgung in Heikendorf verbessert und die Aufenthaltsqualität langfristig gesteigert werden.
Die Verfahrensführung erfolgt nach § 13a BauGB als Bebauungsplan der Innenentwicklung.
Stadt Wittenberge – Brandenburg
5. Änderung des Flächennutzungsplanes
Die Stadt Wittenberge beabsichtigt, den Flächennutzungsplan in der Fassung von Juni 1998, zuletzt geändert im Dezember 2014, gemäß § 2 BauGB hinsichtlich der aktuellen städtebaulichen Erfordernisse umfassend zu ändern und mit einem Planungshorizont bis zum Jahr 2035 fortzuschreiben.
Dies ist notwendig, um den veränderten städtebaulichen und demografischen Rahmenbedingungen gerecht zu werden. Im Zuge der 5. Änderung werden erneuerte Flächendarstellungen aus bereits rechtskräftigen Bebauungsplänen und abgeschlossene Planfeststellungsverfahren, wie der Bau der A 14 und der L 11, übernommen, ökologische Ausgleichsflächen berücksichtigt sowie Anpassungen an die real vorkommenden Gegebenheiten vorgenommen.
Die umfassende Änderung des Flächennutzungsplanes beinhaltet 85 Änderungsflächen und wird als zweistufiges Regelverfahren mit paralleler Erstellung des Umweltberichtes durchgeführt.
